Annuncio Z345-T
Appartamento in affitto a Quarto d'Altino
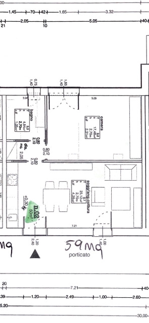
IN AFFITTO A PORTEGRANDI: MINI APPARTAMENTO DALLE GENEROSE METRATURE AL PIANO TERRA CON SPAZIO ESTERNO
Prezzo: 600,00 €
Caratteristiche principali
Classe Energetica: D (L.90/13)
Contatta l'agenzia
Inviando questa richiesta dichiari di aver preso visione e accettato la nostra informativa sulla privacy.
Disponibile da fine maggio 2026.Proponiamo a Portegrandi, vicinissimo al centro H-Farm e a pochi km dall'aereoporto Marco- Polo, questo appartamento su edificio ristrutturato nel 2020.
L'appartamento situa al piano terra, completamento arredato a nuovo, composto come segue: ampio spazio esterno privato piastrellato e recintato, ingresso su luminoso e ampio soggiorno open space con angolo cottura, disimpegno, bagno con lavatrice e ampia camera matrimoniale con uscita allo spazio esterno privato.
L'immobile viene affittato per medi/lunghi periodi.
UTENZE ATTIVE a nome del proprietario da rimborsare le utenze comprensive di acqua, luce, gas, rifiuti e spese condominiali. (200 euro)






© DUEGIMMOBILIARE