Annuncio A794
Casa Singola in vendita a Quarto d'Altino
ABITAZIONE SINGOLA ATTUALMENTE DIVISA IN DUE APPARTAMENTI
Prezzo: 215.000,00 €
Caratteristiche principali
Classe Energetica: F
I.P.E. globale: 218 Kwh/mq anno
Contatta l'agenzia
Inviando questa richiesta dichiari di aver preso visione e accettato la nostra informativa sulla privacy.
IMMOBILE.
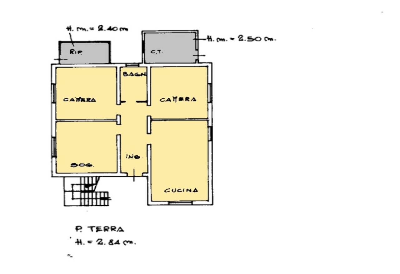
Abitazione attualmente suddivisa in due unità abitative, una al piano terra ed una al piano primo (è possibile fare la fusione delle due unità in una unica casa singola), con scoperto esclusivo a giardino e magazzino.
CARATTERISTICHE.
Gli appartamenti sviluppano 85 mq calpestabili ciascuno, e sono suddivisi in: 2 camere da letto matrimoniali, una ampia cucina, salotto, bagno e grande ingresso/corridoio. Come elementi accessori troviamo la centrale termica e due magazzini. Le metrature sono molto generose tipiche delle costruzioni di quel tempo. Il tetto dell'abitazione è stato rifatto pochi anni fa come anche la sostituzione della guaina. L'alloggio a piano primo è dotato di caldaia nuova a condensazione, infissi in pvc con vetrocamera. Il bagno ed il tetto sono stati rivisti nel 2003.
LOCATION.
L'immobile si trova in località Portegrandi, frazione di Quarto d'Altino (VE), a due passi dal rinnomato comprensorio H-Farm con le sue molteplici attività tra cui la scuola internazionale e i corsi dell'università Cà Foscari di Venezia. La realtà è quella tipica dei piccoli paesi di periferia abitati da famiglie tranquille e dove i bambini giocano ancora per strada.
La posizione strategica in quanto permette di raggiungere anche con le linee degli autobus ATVO e MOM la città di Venezia, il vicino aeroporto Marco Polo ( distante solo 10 minuti d'auto), la città balneare di Jesolo, la fornita città di San Donà di Piave e anche la storica Treviso. Il paese è dotato dei servizi primari come il panificio con alimentari, la posta, la farmacia, le scuole materna ed elementare edicola tabaccaio / bar/ ristoranti e pizzeria.
Per gli amanti della natura siamo affacciati sulla laguna di Venezia e circondati dalla ciclabile sul corso del fiume Sile.
CONTATTI
Filiale di QUARTO D'ALTINO - Piazza San Michele 47/O - Telefono 0422.824765
CONSULENZA MUTUO
Nella nostra agenzia trovate la consulenza gratuita di un esperto mediatore creditizio per trovare il vostro migliore mutuo bancario in tempi brevi.



.jpg)
.jpg)
.jpg)
.jpg)
.jpg)
.jpg)
.jpg)
.jpg)
.jpg)
.jpg)





© DUEGIMMOBILIARE