Annuncio A878
Casa Singola in vendita a Roncade
Abitazione su due piani con due appartamenti distinti costituti entrambi da tre camere da letto e 2 bagni
Prezzo: 380.000,00 €
Caratteristiche principali
Classe Energetica: E
Contatta l'agenzia
Inviando questa richiesta dichiari di aver preso visione e accettato la nostra informativa sulla privacy.
IMMOBILE.
Abitazione costituita da due unità abitative distinte con garage e magazzini al piano seminterrato.
L'abitazione al piano terra, con finiture interne risalenti al 1978, è composta da un ampio ingresso, soggiorno, cucina separata, 4 camere da letto e due bagni finestrati per un totale di 118 mq di superficie interna.
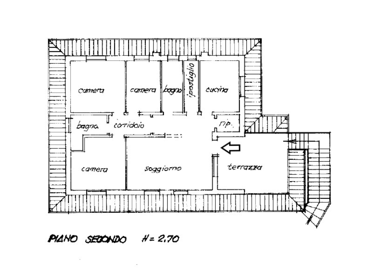
L'abitazione al piano primo, con finiture interne del 1986, è composta da una grande terrazza coperta ottima per pranzi e cene all'aperto, ingresso su zona soggiorno, cucina separata, ripostiglio, lavanderia, 3 camere da letto e due bagni finestrati per un totale di 105 mq interni. Gli infissi sono in legno con vetrocamera, i pavimenti della zona giorno in granito mentre quelli della zona notte in legno, e dotata di impianto di aria condizionata.
Al piano seminterrato troviamo una ampia zona autorimessa di 60 mq e vari locali a magazzino.
CARATTERISTICHE.
Ciò che caratterizza questa abitazione è sicuramente l'ampio giardino esterno di circa 1200 mq alberato e molto curato con aree pavimentate destinate da una parte a parcheggio e da un'latra a patio per momenti di convivialità. Altra caratterista prevalente sono i grandi spazi interni di ciascuna unità e anche dei vani accessori.
LOCATION.
L'immobile è situato nella parte periferica del comune di Roncade in una zona di transito che la collega alla vicina cittadina di Casale sul Sile. Il territorio roncadese è vicino ha importanti vie di comunicazione, come le autostrada A27 Mestre-Belluno e A4 Venezia-Trieste e la linea ferroviaria Venezia-Trieste che lo rende un punto strategico per gli spostamenti nella zona. La città è dotata di qualsiasi tipo di servizi di prima necessità.




© DUEGIMMOBILIARE