Annuncio A903-C
Casa Bifamiliare/Schiera in vendita a Quarto d'Altino
Porzione di casa in zona centrale
Prezzo: 185.000,00 €
Caratteristiche principali
Classe Energetica: A2
I.P.E. globale: 58,32 Kwh/mq anno
Contatta l'agenzia
Inviando questa richiesta dichiari di aver preso visione e accettato la nostra informativa sulla privacy.
IMMOBILE: Quarto D'altino in zona residenziale centrale proponiamoporzione di casa ristrutturata con riqualificazione energetica. Classe A2
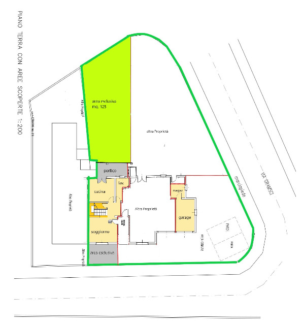
CARATTERISTICHE: porzione di casa sviluppata su due livelli con giardino privato e box auto e magazzino.
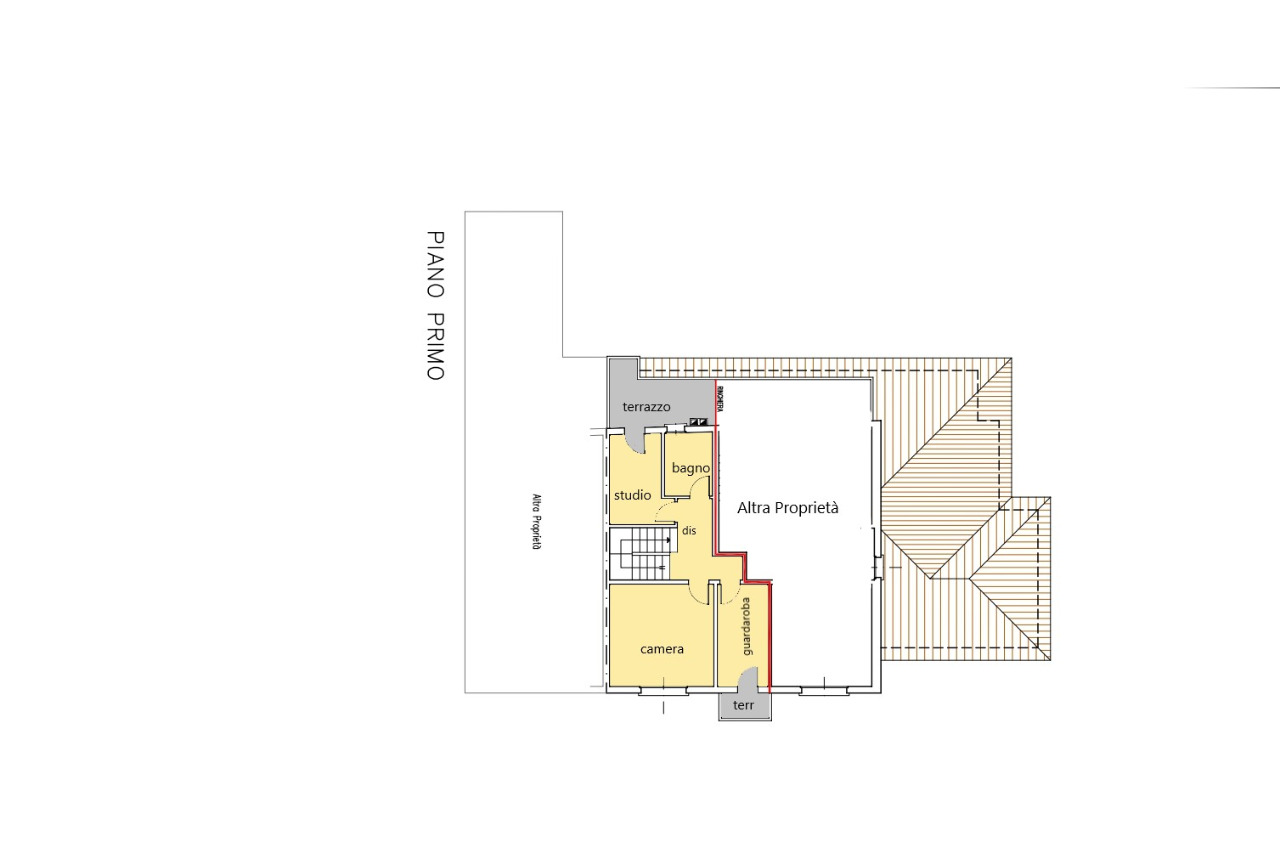
L'abitazione è composta al piano terra da un accogliente soggiorno, cucina separata di grandi dimensioni e lavanderia, mentre al piano primo si trovano la camera matrimoniale, uno studio, una stanza guardaroba e il bagno.
La porzione è stata parzialmente ristrutturata con particolare attenzione all'efficientamento energetico: cappotto, serramenti nuovi, pannelli fotovoltaici con accumulo.
LOCATION: L'immobile si trova in posizione strategica a Quarto d'Altino (VE) per comodità a tutti i principali servizi
Ottima soluzione per i pendolari per la comodità alla stazione ferroviaria e facilmente raggiungibili le linee degli autobus ATVO e MOM. Luoghi di interessa sono la vicina città di Venezia, la città balneare di Jesolo, la fornita città di San Donà di Piave e anche la storica Treviso. Il paese è dotato dei servizi primari come il panificio con alimentari, la posta, la farmacia, le scuole materna ed elementare edicola tabaccaio / bar/ ristoranti e pizzeria.
la zona offre opportunità per escursioni in bicicletta, passeggiate lungo il fiume Sile e visite alla Laguna di Venezia.
CONTATTI
Filiale di QUARTO D'ALTINO - Piazza San Michele 47/O - Telefono 0422.824765
CONSULENZA MUTUO
Nella nostra agenzia trovate la consulenza gratuita di un esperto mediatore creditizio per trovare il vostro migliore mutuo bancario in tempi brevi.


.jpg)
.jpg)
.jpg)
.jpg)
.jpg)
.jpg)
.jpg)
.jpg)
.jpg)
.jpg)
.jpg)
.jpg)
.jpg)
.jpg)
.jpg)
.jpg)
.jpg)
.jpg)
.jpg)




© DUEGIMMOBILIARE