Annuncio A889
Appartamento in vendita a Roncade
CENTRO RONCADE: VENDESI APPARTAMENTO ALL'ULTIMO PIANO CON 3 CAMERE, SOGGIORNO E CUCINA SEPARATI, COMPLETAMENTE ARREDATO
Prezzo: 127.000,00 €
Caratteristiche principali
Classe Energetica: G (L.90/13)
Contatta l'agenzia
Inviando questa richiesta dichiari di aver preso visione e accettato la nostra informativa sulla privacy.
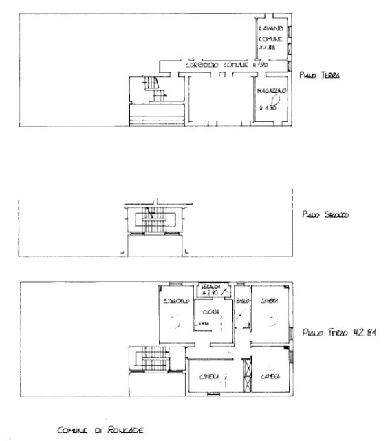
Appartamento posto al piano terzo e ultimo di una piccola palazzina di 6 unità in zona centrale di Roncade, pochi passi da tutti i servizi e dai portici della città.
Disposto come segue: ampio ingresso, soggiorno e cucina separati on accesso alla veranda, bagno, tre ampie camere da letto. Libero da subito. Venduto completamente arredato.
Compreso di un box/magazzino e una cantina al piano terra.





© DUEGIMMOBILIARE