Annuncio A903
Casa Bifamiliare/Schiera in vendita a Quarto d'Altino
Intera Bifamiliare in zona centrale
Prezzo: 385.000,00 €
Caratteristiche principali
Classe Energetica: A2
I.P.E. globale: 58,32 Kwh/mq anno
Contatta l'agenzia
Inviando questa richiesta dichiari di aver preso visione e accettato la nostra informativa sulla privacy.
IMMOBILE: Quarto D'altino in zona residenziale centrale proponiamo intera bifamiliare (due unità abitative) ristrutturata con riqualificazione energetica. Classe A2
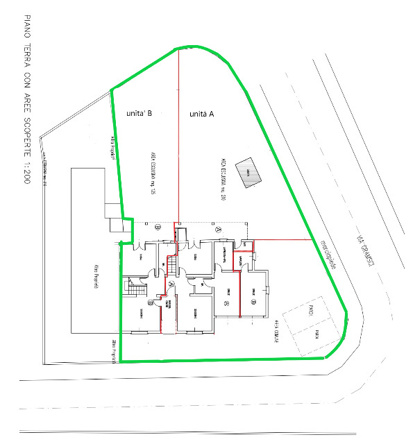
CARATTERISTICHE: la bifamiliare è composta da due unità abitative distinte sviluppate su due livelli con giardini privati e box auto.
La porzione laterale (A) è composta al piano terra da ampio ingresso e luminoso soggiorno, cucina separata abitabile, disimpegno che collega il garage ed il bagno- lavanderia all'abitazione.
Al piano superiore il disimpegno conduce alle due ampie camere matrimoniali e al secondo bagno. Completa l'immobile un giardino privato di oltre 200 mq con portico per momenti di relax all'aperto.
La seconda abitazione (B) sempre sviluppata su due livelli è composta al piano terra da un accogliente soggiorno, cucina separata di grandi dimensioni e lavanderia, mentre al piano primo si trovano la camera matrimoniale, uno studio, una stanza guardaroba e il bagno. Completano l'abitazione il garage con magazzino e lo scoperto privato.
Le aree esterne sono attualmente distinte ma offrono la possibilità di diventare un unico grande giardino o di essere rese comunicanti tra loro.
L'immobile è perfetto per nuclei familiari allargati ( genitori e figli).
Le porzione sono state parzialmente ristrutturate con particolare attenzione all'efficientamento energetico: cappotto, serramenti nuovi, pannelli fotovoltaici con accumulo.
LOCATION: L'immobile si trova in posizione strategica a Quarto d'Altino (VE) per comodità a tutti i principali servizi
Ottima soluzione per i pendolari per la comodità alla stazione ferroviaria e facilmente raggiungibili le linee degli autobus ATVO e MOM. Luoghi di interessa sono la vicina città di Venezia, la città balneare di Jesolo, la fornita città di San Donà di Piave e anche la storica Treviso. Il paese è dotato dei servizi primari come il panificio con alimentari, la posta, la farmacia, le scuole materna ed elementare edicola tabaccaio / bar/ ristoranti e pizzeria.
la zona offre opportunità per escursioni in bicicletta, passeggiate lungo il fiume Sile e visite alla Laguna di Venezia.
CONTATTI
Filiale di QUARTO D'ALTINO - Piazza San Michele 47/O - Telefono 0422.824765
CONSULENZA MUTUO
Nella nostra agenzia trovate la consulenza gratuita di un esperto mediatore creditizio per trovare il vostro migliore mutuo bancario in tempi brevi.


.jpg)
.jpg)
.jpg)
.jpg)
.jpg)
.jpg)
.jpg)
.jpg)
.jpg)
.jpg)
.jpg)
.jpg)
.jpg)
.jpg)
.jpg)
.jpg)
.jpg)
.jpg)
.jpg)
.jpg)
.jpg)
.jpg)
.jpg)
.jpg)
.jpg)
.jpg)
.jpg)
.jpg)
.jpg)
.jpg)
.jpg)
.jpg)
.jpg)
.jpg)
.jpg)
.jpg)
.jpg)
.jpg)
.jpg)
.jpg)
.jpg)




© DUEGIMMOBILIARE